A. Reyrolle & Company

A. Reyrolle & Company
Company typePublic
IndustryEngineering
Founded1886 (1886)
Defunct1998 (1998)
FateAcquired
SuccessorSiemens
HeadquartersHebburn, UK
ProductsSwitchgear

A. Reyrolle & Company was a British engineering firm based in Hebburn, Tyne and Wear in the North East of England. For many years the company was one of the largest employers on Tyneside.

History

Example of typical Siemens switchgear

The company was founded by Alphonse Constant Reyrolle, a French electrical engineer and entrepreneur,[1] in 1886 at Fitzroy Square in London to produce scientific instruments.[2] He moved the business to Hebburn on Tyneside in 1901.[3] At its peak it manufactured switchgear for power stations worldwide and employed 12,000 people.[3]

The company had its own football team, which evolved into Hebburn Town F.C.[4]

The company merged with C. A. Parsons and Company to form Reyrolle Parsons in 1968.[5]

Following the appointment of James Woodeson as chairman in 1974,[6] Reyrolle Parsons merged with Clarke Chapman to form Northern Engineering Industries plc in 1977.[5] Northern Engineering Industries was acquired by Rolls-Royce plc in 1989.[5]

Scan of and early Reyrolle logo showing and early open frame switchgear design
Scan of and early Reyrolle logo showing and early open frame switchgear design
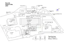
Reyrolle Hebburn site 1990-2004
Reyrolle Hebburn site layout between 1990 and 2004. Most of the site is now a housing estate. Only the Protection business of the original Hebburn site remains owned by Siemens.

The business was acquired in 1998 by VA Technologie AG,[7] which was acquired by the industrial conglomerate Siemens in 2005, reuniting the company with Parsons under the new owners.[8] Siemens supported the Reyrolle installed base on a global basis, with Operations and Protection based at the remaining section of the original Reyrolle Works in Hebburn, although this constitutes only around 10 percent of the original site.[9] The Major Projects division is based at a modern office building on the nearby Monkton Business Park.[10]

The New Zealand division, Reyrolle Pacific, was sold by Siemens AG/VA Tech to a private individual in New Zealand.[11] This included the switchgear factory in Petone, with a staff of about 100.[12] Reyrolle Pacific Switchgear became RPS Switchgear and manufactures retrofit breakers for the original LMT switchgear, and vacuum breakers and panels for 11 kV substations.[12]

References

  1. ^ Son of Martial Reyrolle and Marie Faye
  2. ^ Jones, W.S (1996). "A lesson in industrial survival". IEE Review. 42 (2). IEEE Xplore: 75–78. doi:10.1049/ir:19960214 (inactive 11 July 2025).{{cite journal}}: CS1 maint: DOI inactive as of July 2025 (link)
  3. ^ a b "Open Writing: 50 - The Office Messenger". Openwriting.com. Retrieved 6 May 2021.
  4. ^ Reyrolles at the Football Club History Database
  5. ^ a b c "Cranes in NZR Service". Nzrcranes.org. Archived from the original on 3 March 2016. Retrieved 6 May 2021.
  6. ^ NEI names McDonald to succeed Woodeson as new chairman. Vol. 206. The Electrical Review. 1979. p. 5.
  7. ^ "Reyrolle switchgear and Peebles Transformers sold by Rolls-Royce to VA Tech". International Power Generation. October 1998. Archived from the original on 4 March 2016. Retrieved 20 September 2015.
  8. ^ "Siemens". Siemens.com. Retrieved 6 May 2021.
  9. ^ Welcome to Siemens Reyrolle Archived April 17, 2010, at the Wayback Machine
  10. ^ Staff devastated by redundancy news Archived 21 November 2010 at the Wayback Machine Shields Gazette, 21 May 2010
  11. ^ Reyrolle PAcific Board records - History of Reyrolle Pacific Swicthgear, 7 - 17 Bouverie Street, Petone, Lower Hutt
  12. ^ a b "RPS Switchgear Home". Rpsswitchgear.com. Retrieved 6 May 2021.

Further reading

  • Arcs, Sparks & Engineers: A Centenary History of A. Reyrolle & Co. Ltd. (1901–2001), Alan Wright (ed.), Reyrolle Heritage Trust Press, 2001, ISBN 978-0-9538972-0-9
  • The Reyrolle Story, Robert Owen, Write Good Books, 2007, ISBN 978-1-905295-07-4